



Vă propun spre vânzare o casă individuală P+1E, construită în 2023, situată într-o zonă în plină dezvoltare din Ștefăneștii de Jos, pe strada Reșița.
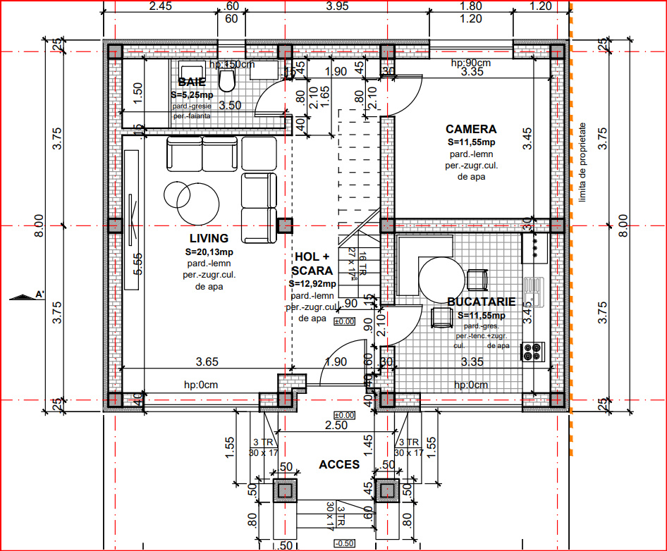
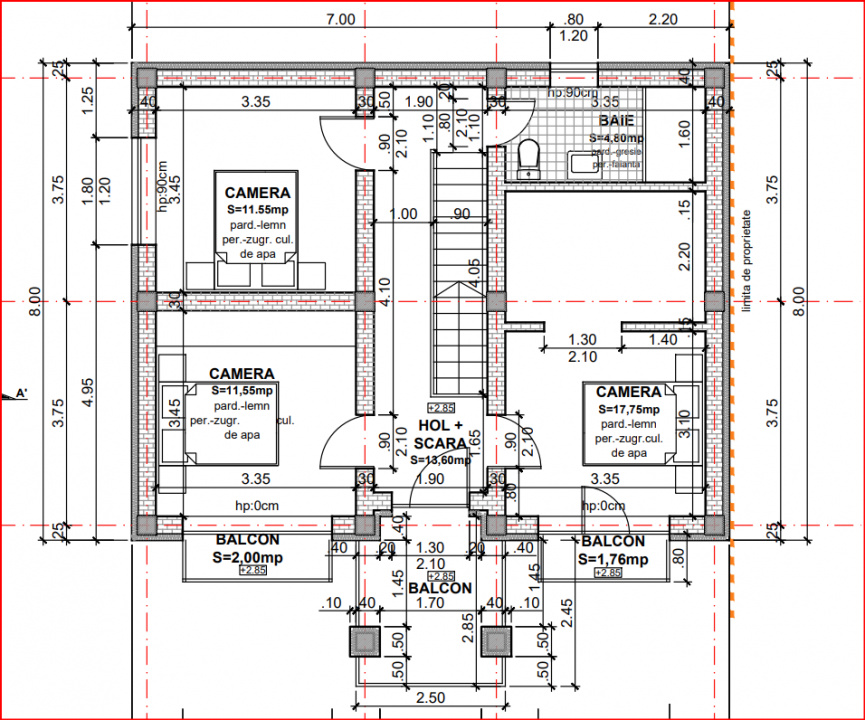
Imobilul este edificat pe un teren de 242 mp, cu deschidere de 12 ml, având o amprentă la sol de 85 mp, oferind un spațiu generos și compartimentare eficientă: 5 camere, 2 băi, Bucătărie, Terasă.
Casa se vinde la stadiul „la roșu”, oferindu-vă posibilitatea de a o personaliza integral după propriul gust și buget.
Zona este liniștită, cu acces facil către București, școli, magazine și principalele artere rutiere.
Pentru detalii suplimentare și programarea unei vizionări, vă stau la dispoziție.